- Woonoppervlakte
- Circa 110 m²
- Perceeloppervlakte
- Circa 143 m²
- Bouwjaar
- Gebouwd in 1981
- Aantal kamers
- 5 kamers (4 slaapkamers)
Deze woning beschikt over een gebruiksoppervlakte van ca. 110 m² en een bruto inhoud van 391 m³, met daarnaast een praktische berging in de tuin. De ligging is ideaal: in een rustige woonwijk met volop groen, speelvoorzieningen in de buurt en goede verbindingen richting het centrum van Heerlen, winkels, scholen en uitvalswegen.
Indeling
Begane grond
Via de entree met hal, toilet en trapopgang bereikt u de ruime lichte woonkamer. Aan de achterzijde bevindt zich de open eetkamer met moderne keuken, voorzien van diverse inbouwapparatuur en voldoende werk- en kastruimte. Vanuit de woonkamer is er een fijn contact met de tuin.
Eerste verdieping
Op de verdieping treft u drie comfortabele slaapkamers:
Slaapkamer 1: ca. 3,68 × 5,20 m
Slaapkamer 2: ca. 4,64 × 2,92 m
Slaapkamer 3: ca. 3,62 × 2,18 m
Daarnaast vindt u hier de badkamer, voorzien van ligbad, toilet en wastafel.
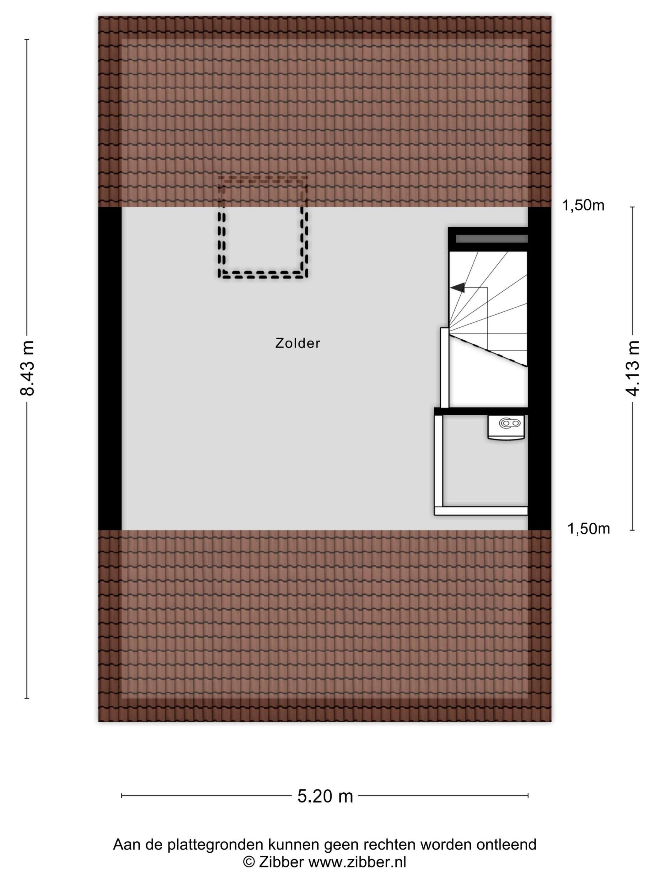
Tweede verdieping (zolder)
Een ruime zolder, bereikbaar via een vaste trap, biedt volop mogelijkheden. Deze ruimte kan worden ingericht als vierde slaapkamer, kantoor of hobbykamer.
Berging
In de tuin is een separate berging aanwezig (ca. 7 m²), ideaal voor fietsen en extra opslag.
Kenmerken
Woonoppervlakte: ca. 110 m²
meetrapport_A_1576835_202509041…
Inhoud: ca. 391 m³
Externe berging: ca. 7 m²
Ruime en lichte woonkamer
3 slaapkamers met goede maatvoering + ruime zolder
Badkamer met ligbad en tweede toilet
Rustige, kindvriendelijke woonwijk
Nabij scholen, winkels en uitvalswegen
Bijzonderheden
De waarborgsom/bankgarantie is 10% van de koopsom. De koper dient deze binnen 2 weken nadat het financieringsvoorbehoud is verlopen bij de notaris te deponeren.
Ter bescherming van de belangen van zowel koper als verkoper wordt uitdrukkelijk gesteld dat een koopovereenkomst met betrekking tot deze onroerende zaak eerst tot stand komt nadat koper en verkoper de koopovereenkomst hebben getekend (schriftelijkheidsvereiste).
Alle door ons kantoor verstrekte informatie omtrent onroerende zaken moet beschouwd worden als een uitnodiging om in onderhandeling te treden en is geheel vrijblijvend. Aangegeven maten zijn bij benadering. Aan deze informatie kunnen geen rechten worden ontleend.
Een eventueel bijgevoegde plattegrond dient uitsluitend als globale indicatie/visualisatie. Hieraan kunnen geen rechten worden ontleend. Indien de CV-ketel en/of warmwatervoorziening een huurtoestel betreft, dient de koper de huurovereenkomst over te nemen.
Overdracht
- Vraagprijs
- € 229.000 k.k.
- Status
- Beschikbaar
- Aanvaarding
- Direct
Bouw
- Object type
- Eengezinswoning, tussenwoning
- Soort bouw
- Bestaande bouw
- Bouwjaar
- 1981
- Soort dak
- Zadeldak bedekt met pannen
Oppervlakte en inhoud
- Woonoppervlakte
- 110 m²
- Perceeloppervlakte
- 143 m²
- Inhoud
- 391 m³
- Externe bergruimte
- 7 m²
Indeling
- Aantal kamers
- 5 kamers (4 slaapkamers)
- Aantal badkamers
- 1 badkamer en 2 aparte toiletten
- Badkamervoorzieningen
- Ligbad, douche, toilet, wastafel
- Voorzieningen
- Tv kabel, internet, rolluiken, zonnepanelen
Energie
- Energielabel
- C
- Energielabel registratie
- 12-01-2016
- Isolatie
- Volledig geïsoleerd
- Verwarming
- CV-ketel
Buitenruimte
- Ligging
- In woonwijk
- Tuin
- Achtertuin, voortuin
- Afmetingen achtertuin
- 50 m² (10 meter diep en 5 meter breed)
- ligging tuin
- en bereikbaar via achterom
Bergruimte
- Schuur / berging
- Vrijstaand steen
Parkeergelegenheid
- Soort parkeergelegenheid
- Openbaar parkeren
Indicatie hypotheeklasten
Eigen inleg:
Spaargeld / overwaarde
Rente:
Laagste 10-jaars rente
Laagste 10-jaars rente
2,75% - Centraal Beheer Groen... - NHG
3,04% - Argenta Groen Hypothee... - 80%
Laagste 20-jaars rente
3,18% - Argenta Groen Hypothee... - NHG
3,39% - Argenta Groen Hypothee... - 80%
Laagste 30-jaars rente
3,35% - Argenta Groen Hypothee... - NHG
3,56% - Argenta Groen Hypothee... - 80%
Hypotheek:
Bruto maandlasten: € 0 p/m
Netto maandlasten: € 0 p/m
Hoe berekenen we dit?
Het rentepercentage is gebaseerd op de laagste 10 jaars vaste rente voor één hypotheekdeel. De vermelde rente (2.75% met NHG) is gecontroleerd op 08-11-2025. Deze berekening is gebaseerd op een annuïteitenhypotheek die volledig wordt afgelost, waarbij de maandlasten gedurende de gehele looptijd gelijk blijven. De werkelijke rente en netto maandlasten kunnen variëren, afhankelijk van uw persoonlijke situatie en de hypotheekverstrekker. Raadpleeg een financieel adviseur voor een nauwkeurige berekening en advies. Aan deze berekening kunnen geen rechten worden ontleend; het dient enkel als indicatie.
Documentatie
Kadastrale kaart
Leefomgeving
BAG uittreksel
Brochure
68aaf3ca3c91b
Lijstvanzaken-5121
Vragenlijsta-5121
Vragenlijstb-5121
Plattegronden PDF
WOZ waarderapport
Bezichtiging
Bod uitbrengen
Waardebepaling
Zoekopdracht
Alles downloaden
Zonnegrenzen bekijken
Inwoners in Heerlen
Cijfers voor postcodegebied 6413
- Totaal aantal inwoners
- 11375 inwoners
- Mannen
- 50%
- Vrouwen
- 50%
Inwoners in Heerlen
Cijfers voor postcodegebied 6413
- tot 15 jaar
- 14%
- 15 tot 25 jaar
- 10%
- 25 tot 35 jaar
- 22%
- 45 tot 65 jaar
- 31%
- 65 en ouder
- 23%
Huishoudens in Heerlen
Cijfers voor postcodegebied 6413
- Eenpersoons zonder kinderen
- 44%
- Meerpersoons zonder kinderen
- 27%
- Huishoudens zonder kinderen
- 71%
Huishoudens in Heerlen
Cijfers voor postcodegebied 6413
- Huishoudens met één kind
- 11%
- Huishoudens met meerdere kinderen
- 18%
- Huishoudens met kinderen
- 29%
Woningen in Heerlen
Cijfers voor postcodegebied 6413
- Woningen voor 1945
- 17%
- Woningen tussen 1945 en 1965
- 15%
- Woningen tussen 1965 en 1975
- 18%
- Woningen tussen 1975 en 1985
- 23%
- Woningen tussen 1985 en 1995
- 13%
Woningen in Heerlen
Cijfers voor postcodegebied 6413
- Woningen tussen 1995 en 2005
- 6%
- Woningen tussen 2005 en 2015
- 7%
- Woningen na 2015
- 1%
- Huurwoningen
- 50%
- Koopwoningen
- 50%
Overige in Heerlen
Cijfers voor postcodegebied 6413
- Gemiddelde WOZ waarde
- € 126.000,-
- Personen onder de 65 met uitkering
- 16%
Overige in Heerlen
Cijfers voor postcodegebied 6413
- Adressen per km²
- 1720
- Stedelijkheid (schaal 1 op 5)
- 80%
Korte feiten over Heerlen
Heerlen (Limburgs: plaatselijk Heële) is een stad en gemeente in het zuidoosten van de Nederlandse provincie Limburg. Op 1 januari 2024 had Heerlen 87.498 inwoners (CBS). Heerlen is daarmee de grootste gemeente in de Oostelijke Mijnstreek, en de vierde van Limburg, na Maastricht, Venlo en Sittard-Geleen.
Parkstad Makelaardij
Indien u vragen heeft of u wilt een bezichtiging inplannen, dan kunt u gebruik maken van het formulier hiernaast. Er zal daarna op korte termijn contact met u worden opgenomen.
Contact opnemen
Parkstad Makelaardij
Twijfelt u of het nu het juiste moment is om uw woning in Parkstad te verkopen? Dat is begrijpelijk zeker als u nog geen nieuw huis heeft gevonden, is die stap niet eenvoudig.
Toch denkt u er misschien aan om net als buren, vrienden of collega’s een volgende stap te zetten. Misschien speelt ook mee dat de markt op dit moment gunstig is, en u juist nu een goede prijs voor uw woning kunt krijgen—een kans die zich de komende jaren mogelijk niet meer voordoet.
Laat daarom vrijblijvend en kosteloos uw woningwaarde bepalen door Parkstad Makelaardij. Zo weet u precies waar u aan toe bent.
Nieuwste reviews
-
Nautiluserf 28
Heel erg tevreden goed en snel geholpen. Huis was heel snel verkocht binnen een 1,5 week hebben we een goed bod gekregen.Said was goed en sn...
-
Annastraat 34
Soepel contact. Reageert snel en is duidelijk. Hele fijne man om mee te werken. Saïd bedankt!
-
Aletta Jacobsstraat 34
Makkelijke communicatie en super vriendelijk. Reageert bij vragen heel snel.Is eenmans makelaar, waardoor al het werk door hem wordt gedaan....